casa brooklin
ficha técnica
• projeto completo casa térrea
• reforma total
• repaginação de layout
• troca de acabamentos
• 238m² de área construida e 500m² de área total
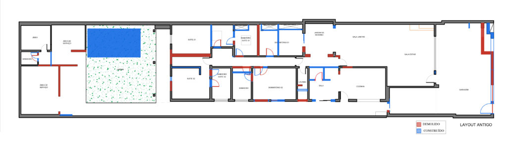
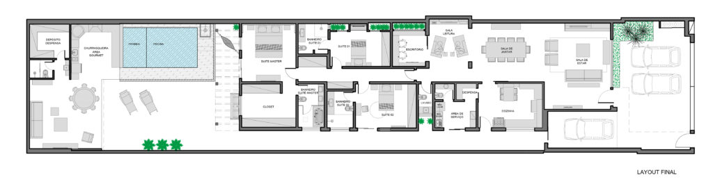
destaques
• ampliação da sala de estar, repaginação da lareira
• mudança de layout da cozinha
• ambiente externo com área gourmet conjugada à piscina
antes & depois
créditos
fotografia
•Priscila Andrade






















